非金屬礦是除金屬礦外的一類重要礦物,廣泛應用于建材、化工、能源、輕工等傳統行業以及航天、電子、通訊、新材料等高新技術產業。

非金屬礦物材料一般對純度要求較高,由于物料中通常會含有少部分的強磁性礦物,這部分磁性鐵如果不預選去除,物料直接進入強磁選設備,會堵塞強磁設備中的介質,使得強磁選設備無法正常分選,或者分選效率降低。為避免這一現象的產生,除鐵流程通常采用筒式磁選機或板式強磁選機預先除磁性鐵和部分弱磁性氧化鐵,再用立環高梯度磁選機或漿料磁選機、超導磁選機最終除鐵的工藝。


目前市場應用的非金屬礦預除鐵用筒式磁選機沒有結合非金屬礦的工況條件進行專門設計制造,普遍存在以下缺點:物料分選不徹底、鐵料混雜;給料不均勻;滾筒帶料卸礦不干凈;槽體易磨損等問題。
CTN系列全逆流型非金屬礦預除鐵專用永磁筒式磁選機的設計應用,解決了目前除鐵設備存在的很多缺陷。
結構和原理、產品參數
基本結構
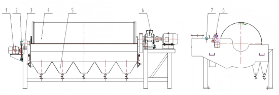
CTN系列非金屬礦預除鐵專用永磁筒式磁選機主要有滾筒總成、槽體總成、傳動總成、機架、卸鐵感應輥總成等組成,如下圖示:

結構圖
1-感應輥卸鐵裝置;2-磁系調整裝置 ;3-機架 ;4-滾筒總成 ;
5-槽體總成;6-傳動裝置;7-沖洗水裝置 ;8-感應輥卸鐵沖洗裝置;
工作原理

工作原理圖
漿料狀礦物經過給料管給入到槽體的分選區,在磁力的作用下,強磁性礦物被吸附到滾筒的表面,隨滾筒逆著給料方旋轉帶到鐵磁性物料的出口,脫離磁系作用后在卸鐵感應輥和卸礦水的作用下排出;弱磁性或無磁性物料順著給礦方向流動,其中粒度較粗的物料經過粗顆粒排料口率先排出,細粒級物料通過細粒級物料溢流出口。
設備主要創新點
磁系結構
磁系采用多磁極磁路結構,筒體內設有磁攪動裝置,分選時附著在滾筒表面的礦物經過多次磁翻滾運動和聚散運動,可以使礦物中磁性物與非磁性物分離充分,減少鐵、料混雜現象,減少物料損失。
磁系結構與槽體匹配分區設計,主磁極之間添加輔助磁極,磁場強度可達7000GS,磁場梯度大,有效保證了磁性鐵的除凈率。
滾筒機械結構
滾筒軸端采用鐵燧巖密封套件,有效阻止雜質進入軸承室損壞軸承。并在兩端分別設有軸套,可以避免軸承損壞情況下對軸造成損傷;鋁端蓋外側采用寬凹槽和內帶隱藏室的結構設計,加強了設備的密封性,避免了生產中帶出的礦漿對軸端件結合面的滲透。
槽體結構
CTN非金屬礦預除鐵專用永磁筒式磁選機,槽體底板采用雙層結構,提高了槽體使用壽命。
槽體出料結構
槽體出料端設置有粗粒級物料排出口和細粒級物料溢流出口,兩個排出口底部設置有控制流量的調節閥,工作時粗顆粒物料沉降較快優先從粗顆粒物料出口排出,通過控制底部閥門的流量,粒度較細的物料越過溢流板從溢流物料出口排出,實現了物料的粗細分級,同時可有效調節控制槽體內液面的高度,使得分選指標可以在一定區間內調節。

槽 體
卸鐵結構
卸鐵采用感應輥結構,輥面感應場強高、梯度大,當鐵磁性雜質通過滾筒旋轉帶到槽體的出鐵口時,受感應輥感應強磁場的作用,鐵雜質被吸附到感應輥上,通過感應輥旋轉和在沖洗水的輔助作用下,被沖洗到槽體的磁性物料出口排出,卸鐵充分干凈。
結語

目前CTN非金屬礦預除鐵專用永磁筒式磁選機已經實現系列化生產,最大機型滾筒直徑1800mm,滾筒長度5000mm,并在山東臨沂石英砂項目應用,臺時處理量高達260噸以上,廣泛應用于石英、長石、高嶺土等非金屬礦除鐵作業,與傳統半逆流和逆流型永磁筒式磁選機相比優勢明顯,鐵雜質除凈率高,無沉槽堵料現象,耐磨性好、使用壽命長等特點,極大提高了設備本身的作業率以及下游強磁除鐵設備的除鐵效果,取得了良好的社會效益和經濟效益。
